中国政府网  |   山西省政府  |   长治市政府 今天是

热点查询:长治屯留旅游老爷山

当前位置:首页 > 长治市屯留区人民政府>部门信息公开>区政府工作部门>长治市屯留区自然资源局>法定主动公开内容>城乡规划领域

字体大小:【大】 【中】 【小】

保存为word 【打印】 关闭
索引号
发文字号 发文时间2023-11-08
发文机关长治市屯留区自然资源局 主题词规划
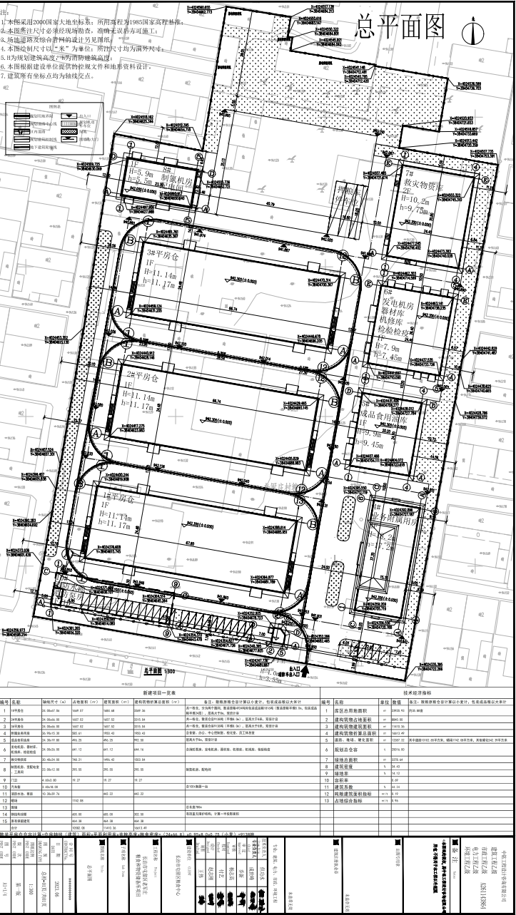
标题长治市屯留区自然资源局关于长治市屯留区老军庄粮食和物资储备库项目规划许可批前公示的公告
主题分类其它 发布日期2023-11-08

长治市屯留区自然资源局关于长治市屯留区老军庄粮食和物资储备库项目规划许可批前公示的公告

 时间:2017-08-20       大    中    小      来源:长治日报

根据《中华人民共和国城乡规划法》和《山西省城乡规划条例》的规定,定于2023年11月8日 至2023年11月16日对长治市屯留区老军庄粮食和物资储备库项目进行规划许可批前公示,公示内容如下:

1、总平面图.png

    2、鸟瞰图.png

公示期间,为便于更好地沟通,欢迎任何单位和个人向屯留区自然资源局规划股提出对上述项目的意见或建议,项目利益相关人如有需要,可对此提出听证的申请。

联系电话:0355-7523061 邮箱:sxtlgt@163.com

特此公告