中国政府网  |   山西省政府  |   长治市政府 今天是

热点查询:长治屯留旅游老爷山

当前位置:首页 > 长治市屯留区人民政府>部门信息公开>区政府工作部门>长治市屯留区自然资源局>法定主动公开内容>城乡规划领域

字体大小:【大】 【中】 【小】

保存为word 【打印】 关闭
索引号000014349/2022-56668
发文字号 发文时间2022-09-07
发文机关长治市屯留区自然资源局 主题词规划
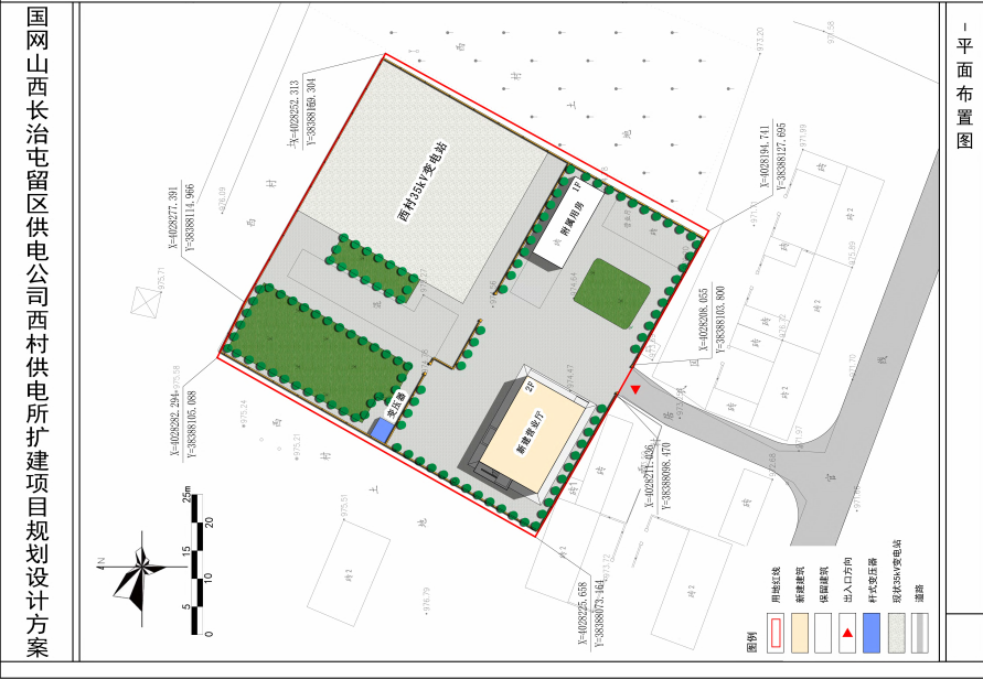
标题长治市屯留区自然资源局关于国网山西长治屯留区供电公司西村供电所扩建项目规划许可批前公示
主题分类建设规划 发布日期2022-09-07

长治市屯留区自然资源局关于国网山西长治屯留区供电公司西村供电所扩建项目规划许可批前公示

 时间:2017-08-20       大    中    小      来源:长治日报

根据《中华人民共和国城乡规划法》和《山西省城乡规划条例》的规定,定于2022年9月7日 至2022年9月13日对国网山西长治屯留区供电公司西村供电所扩建项目规划许可批前公示,公示内容如下:

1、项目平面布置图.png

2、项目区位分析图.png

公示期间,为便于更好地沟通,欢迎任何单位和个人向长治市屯留区自然资源局规划股提出对上述项目的意见或建议,项目利益相关人如有需要,可对此提出听证的申请。

联系电话:0355-7523061 邮箱:sxtlgt@163.com

特此公告